H_HOUSE SẮC MÀU – KIẾN TRÚC PHỐ NÚI BMT
H_HOUSE NHÀ PHỐ _Công trình nhà phố hiện đại tại TP. Buôn Ma Thuột gây ấn tượng mạnh bởi sự kết hợp táo bạo giữa tone màu trắng – đỏ và những đường nét cửa vòm mềm mại cho đến các không gian công năng liên kết liền lạc, riêng tư. Dự án được thiết kế và thi công trọn gói, hiện thực hóa không gian sống đẳng cấp, "đo ni đóng giày" cho gia chủ
Dự án Nhà phố Hiện đại tại BMT – Sự giao thoa giữa Nghệ thuật và Công năng
"Nằm tọa lạc tại vị trí đắc địa của TP. Buôn Ma Thuột, công trình nhà ở mà chúng tôi vừa hoàn thiện không chỉ đơn thuần là một nơi để về, mà còn là một tác phẩm nghệ thuật kiến trúc đầy cá tính.
Với mong muốn hiện thực hóa những giấc mơ về một không gian sống khác biệt, đội ngũ Công Ty ECO đã chăm chút từ khâu lên ý tưởng 3D cho đến khi đặt những viên gạch đầu tiên. Sự tỉ mỉ trong từng nét vẽ, đường xây, cách phối màu...đã tạo nên một mặt tiền đầy lôi cuốn, vừa hiện đại vừa mang đậm dấu ấn cá nhân của gia chủ.
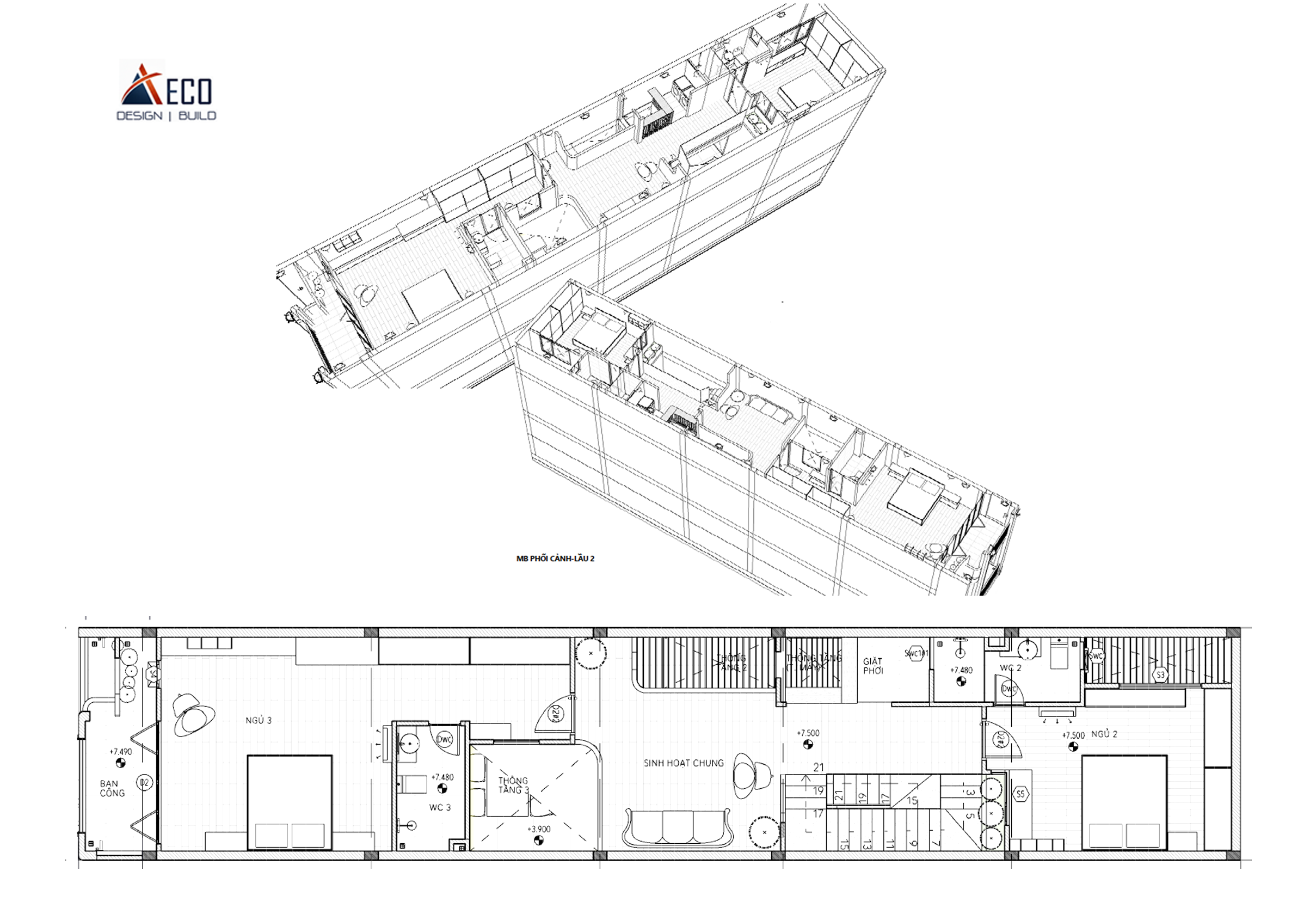
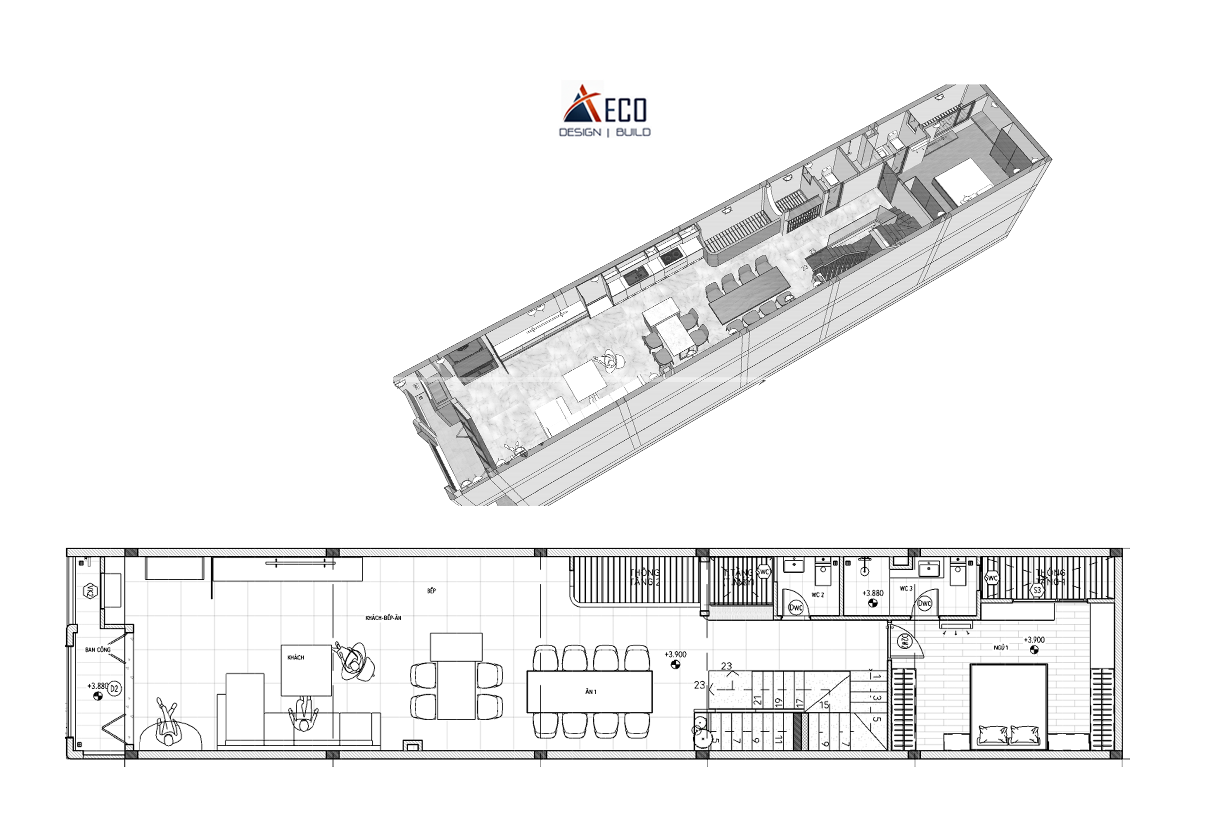
Với đặc trưng của nhà phố hiện đại giải pháp thiết kế phải giải quyết được yêu cầu: Tầng trệt kinh doanh cho thuê chuyên nghiệp, không gian sống của gia đình được đưa lên các tầng cao để đảm bảo sự riêng tư, tiện nghi và kết nối giữa các thế hệ
Hãy cùng khám phá cách chúng tôi giải quyết bài toán không gian sống dạng ngay dưới đây
Chi tiết báo giá và quy trình thi công trọn gói tại: ECO Architecture & Construction
LIÊN HỆ KIẾN TRÚC SƯ TƯ VẤN: Hotline:0935 693968

.png)
.png)
.png)
.jpg)
.jpg)
.png)
.png)
.png)
.jpg)
.png)
.png)
.png)
.png)
.png)
.png)
.png)
.png)
.png)

.png)
.png)
.jpg)

.png)
.png)
.jpg)


.png)
.jpg)
.jpg)
.jpg)
.png)
.png)
.jpg)
.png)
.png)
.png)
.jpg)